Aerobase di Amendola
IL PROGETTO
Ampliamento delle strutture dell’aeroporto militare “Luigi Rovelli” di Amendola, destinate ad ospitare i caccia multiruolo F-35 JSF.
L’INTERVENTO
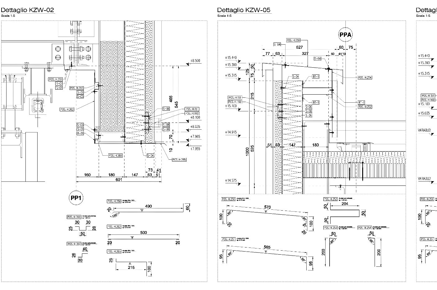
Studio Introzzi ha curato la progettazione costruttiva per la produzione e montaggio di coperture e facciate metalliche dei due nuovi edifici shelter linea di volo e dell’hangar di manutenzione velivoli.
Le coperture degli shelter e dell’hangar sono realizzate con pannelli profilati in alluminio Kalzip 50/429 finitura stucco su lamiera portante in acciaio, mentre le facciate dell’hangar sono rivestite in pannelli profilati in alluminio Kalzip 50/429 RAL 1015 su cassette portanti in acciaio.
La superficie dell’intervento è pari a 23.650 mq, di cui 18.000 mq di coperture e 5.650 mq di facciate.
Progettazione esecutiva dei sistemi di protezione collettiva e individuale (linee vita permanenti).
Studio Introzzi ha inoltre redatto il P.O.S. per l’impresa installatrice.
Aerobase di Amendola
Category
Date
aprile 2, 2014
Client
Aerobase di Amendola
Committente
Franzen Italia
Progettista
SO. IN. CI. S.r.l.
Share this Project
Aerobase "Luigi Rovelli"
Amendola, FG
 Italia
 
Gildemeister – DMG Mori
next project in: Industriali e logistici  
              completed: 02 December 2014
Read More

 
		          





